BMW E30 Logo

Автор Тема: Распорки BMW E30 Чертежи + средняя распорка днища 09.03.2011  (Прочитано 59791 раз)

0 Пользователей и 2 Гостей просматривают эту тему.

  • можно просто - Слава
  • Зверский Е30 Тюннер
  • *****
  • Сообщений: 9069
  • Репутация +402/-21
  • Пол: Мужской
  • Локация: Украина, Киев, Вишневое
  • Возраст:51
« : 07 Апреля 2010, 11:01:00 »
Распорки BMW E30

Эта статья для тех, кто хочет повысить жесткость кузова своей машины с помощью установки передней и задней распорок, но не решается отдать за два куска трубы (пусть даже фирменной и очень красивой  :D) пару сотен баксов. Эти распорки без особых сложностей можно изготовить самому, что я и сделал. Думаю, что найдутся люди, которым это будет интересно, поэтому решил поделиться своими чертежами с  комментариями и фотографиями.
Итак, что нужно.
Материалы (с небольшим запасом):
Металл толщиной 4мм размером 280х340мм
Труба диаметром 25мм длиной 1,2м
Труба диаметром 25мм длиной 1,0м
Прут диаметром 20мм длиной 100мм
Два болта, две гайки, два гровера, четыре шайбы М10
Уайт-спирит, грунт, краска.
Инструмент:
Маркер, рулетка, болгарка, напильник, дрель, электросварка, газовая сварка, наждачная бумага. Ну, еще гаечные ключи и молоток – куда же без него!  ;)
Если у вас все это есть, а так же есть время,  желание и терпение – можете приступать к работе!  ;)

1. Исходные данные.
Чертеж заводских размеров кузова BMW E30(Рис.1):


Рис.1 Чертеж кузова Е30 Формат А4 (210х297)

Перед началом работы необходимо тщательно проверить геометрию кузова по приведеному вертежу. В случае их не соответствия – восстановить (по мере возможности, конечно…кузова бывают разные…)
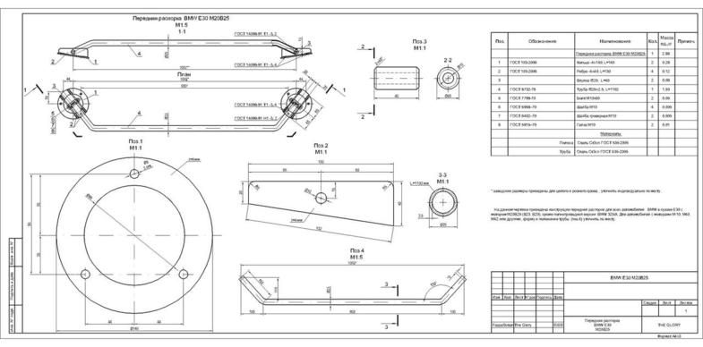
Чертеж передней распорки (Рис.2):


Рис.2 Передняя распорка BMW E30 Формат А4х3 (631х297)

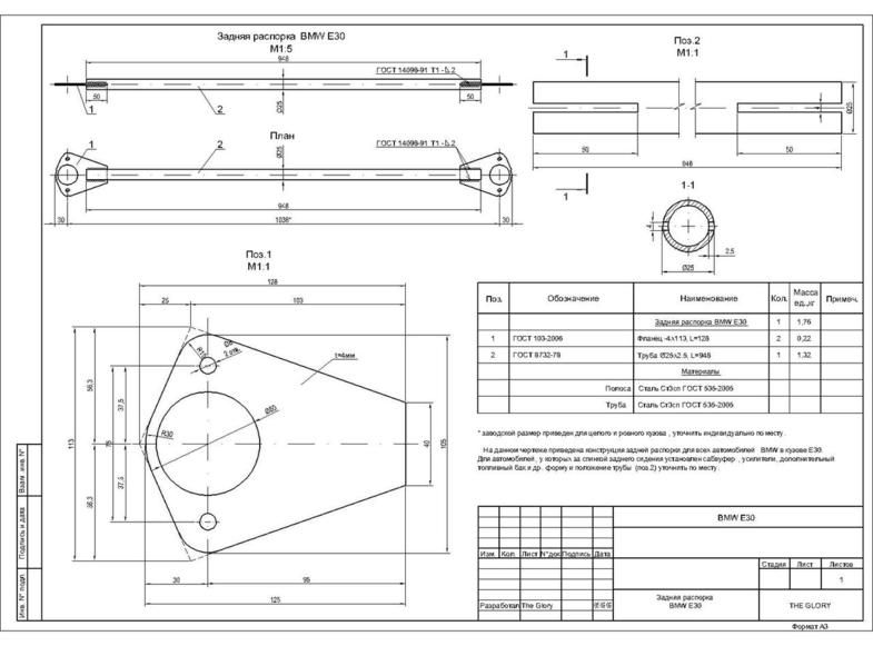
Чертеж задней распорки (Рис.3):


Рис.3 Задняя распорка BMW E30 Формат А3 (420х297)

Для просмотра и печати файлов чертежей .dwf в исходном масштабе (100%) и разрешении, необходима утилита программы AutoCAD- DWF Viewer.

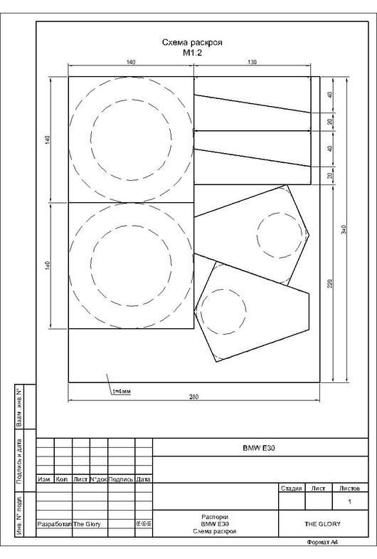
2. Разметить лист метала, согласно схеме раскроя (Рис.4):


Рис.4 Распорки BMW E30 Схема раскроя Формат А4 (210х297)

3.Вырезать заготовки деталей. Лучше сразу обработать кромки напильником. Кольца (1) и втулки (3) сделать самому проблематично, поэтому лучше и проще все заготовки заказать токарю.
4.Распечатать файлы бумажных шаблонов .dwf в исходном масштабе (100%) и разрешении, для этого необходима утилита программы AutoCAD- DWF Viewer. С помощью вырезанных бумажных шаблонов (Рис.5 ,6) разметить центры отверстий и просверлить их. Так же разметить оси и линии приварки ребер (2) к кольцам (1). Как показала практика, лучше это сделать максимально точно и аккуратно, чтобы не было проблем с установкой и не пришлось бы рассверливать потом отверстия.


Рис.5 Передняя распорка BMW E30 Бумажные шаблоны Формат А4 (210х297)


Рис.6 Задняя распорка BMW E30 Бумажный шаблон Формат А4 (210х297)

В результате получаем вот такие детали (Рис.7):


Рис.7

5. Передняя распорка.
Не сильно стянуть болтом ребра (2) и втулку (3). Выровнять их в одной плоскости по кольцу (1) и приварить.
6. Установить готовые опоры передней распорки на стаканы кузова.
7. Выгнуть трубу (4) газовой сваркой по чертежу. У меня это получилось не очень точно, поэтому лучше второй изгиб делать на столе или на полу – что бы они оба были в одной плоскости. После окончательной подгонки сделать болгаркой вырезы на торцах трубы для втулки (3).
8. Снять с аккумулятора клеммы! Прихватить сваркой трубу (4) к втулкам (3). Открутить болты, снять трубу с втулками и обварить их с обеих сторон. Примерять трубу обратно – должна стать без проблем  ;) (Рис.8)


Рис.8

9. Задняя распорка.
Установить фланцы (1) задней распорки на стаканы кузова.
10. По торцам трубы (2) в одной плоскости болгаркой сделать прорези длиной 50мм, шириной 4мм.
11. Снять с аккумулятора клеммы! Прихватить сваркой трубу (2) к фланцам(1). Открутить болты, снять трубу с фланцами и обварить их с обеих сторон. Примерять трубу обратно – должна стать без проблем  ;) (Рис.9)


Рис.9

12. В принципе распорки готовы, но остались «отделочные» работы.
Снимаем обе распорки, разбираем переднюю. Все сварочные швы тщательно зачищаем болгаркой и обрабатываем напильником, трубы зачищаем наждачной бумагой (Рис.10)


Рис.10

13. Обезжириваем уайт-спиритом и грунтуем (Рис.11)


Рис.11

14. Красим в понравившийся цвет и получаем распорки, практически ничем не хуже заводских!  ^-^ (Рис.12)


Рис.12

15. Устанавливаем на машину и ездим «с удовольствием за рулем»  ^-^ (Рис.13)


Рис.13

В обшивке багажника нужно сделать разрезы для распорки. (Рис.14)


Рис.14


На фото есть небольшие несоответствия чертежам. Это объясняется следующим:
1. На кольце левой опоры передней распорки есть еще одно отверстие. Оно не крепежное, просто на левом стакане у меня приварена какая-то шпилька, к которой ничего не крепится. Срезать не захотел, поэтому пришлось делать под нее отверстие в кольце. На большинстве машин этой шпильки нет.
2. Изгиб трубы передней распорки получился не совсем по чертежу из-за неопытности. Второй раз получилось бы точнее.  :D
3. Труба задней распорки не прямая, а с изгибом из-за установленного за спинкой заднего сидения сабвуфера. Гнул по месту.

P.S.
При желании конструкцию можно упростить. Я рассматривал такие варианты:
1. Прямая труба от стакана к стакану через впускной коллектор. Отказался из-за возможного контакта трубы с коллектором или шумоизоляцией капота и как следствие, лишний шум, вибрация и потертости краски. К тому же труба будет немного мешать при замене свечей или регулировке клапанов. Хотя при таком варианте жесткость будет больше.
2. Замена втулок(3) шайбами или вообще просто сварка в этом месте. Отказался из-за не эстетичного вида  :D. Хотя опять же при сварке жесткость будет больше.
3. Трубу 25мм можно заменить на 32мм или на прямоугольную 20х40мм, при их наличии.
4. Ну, и при несоответствии размеров кузова, можно в трубу посередине вварить регулировочный резьбовой механизм.

А вообще – мы легких путей не ищем!  ;)

Для просмотра и печати файлов чертежей .dwf в исходном масштабе (100%) и разрешении, необходима утилита программы AutoCAD- DWF Viewer.
Сcылки на чертежи в формате .dwf

Рис.1 Чертеж кузова Е30.jpg
Рис.2 Передняя распорка BMW E30.dwf
Рис.3 Задняя распорка BMW E30.dwf
Рис.4 Распорки BMW E30 Схема раскроя.dwf
Рис.5 Передняя распорка BMW E30 Бумажные шаблоны.dwf
Рис.6 Задняя распорка BMW E30 Бумажный шаблон.dwf

Сcылка на чертежи в формате .jpg с большим разрешением
http://theglory.io.ua/album372619

(с) The Glory



P.S.
В ближайшее время добавлю чертежи распорки днища, как только установлю ее и буду уверен в их точности и правильности.


_______________________________________________________________________________________________________

Вот и наступило "ближайшее время"!  ;) Как говорится - обещанного 3 года ждут, так что я еще быстро сделал!  ;D

Средняя распорка днища BMW E30

На автомобили с кузовом кабриолет, а так же на все автомобили Е30 для рынка США, средняя распорка днища устанавливалась штатно – деталь №8 на рис.1.
Ее номер по ЕТК 51 71 1 913 824.
http://bmw.autocats.ru/parts/51711913824/
При желании, ее можно заказать у официального диллера BMW по цене около 65$ (Киев). Или же пытаться найти на разборке кабрио или "американца", что весьма проблематично.


Рис.1
Эта статья для тех, кто хочет повысить жесткость кузова своей машины с помощью установки средней распорки днища, но не решается отдать за оригинальную железку около 65 баксов.  ;) Эту распорку без особых сложностей можно изготовить самому, что я и сделал. Думаю, что найдутся люди, которым это будет интересно, поэтому решил поделиться своими чертежами с  комментариями и фотографиями.
Итак, что нужно.
Материалы (с небольшим запасом):
Металл толщиной 4мм размером 100х350мм
Швеллер 40х20х3мм длиной 370мм
Труба диаметром 14мм длиной 18мм
Шесть болтов, шесть гроверов, шесть шайб М8
Уайт-спирит, грунт, краска
   Инструмент:
Маркер, рулетка, болгарка, напильник, дрель, электросварка, наждачная бумага. Ну, еще гаечный ключ на 13 и молоток – куда же без него!  :)
   Если у вас все это есть, а так же есть время,  желание и терпение – можете приступать к работе!  ;)

1.   Исходные данные.
Чертеж средней  распорки днища (Рис.2):


Рис.2 Формат А4х3 (631х297)
Файлы чертежей .dwf в исходном масштабе (100%) и разрешении приложены в конце этой статьи. Для просмотра и печати файлов чертежей .dwf в исходном масштабе (100%) и разрешении, необходима утилита программы AutoCAD- DWF Viewer.
2.   Разметить лист метала, согласно схеме раскроя (Рис.3):


Рис.3 Формат А4 (210х297)
При желании, можно уголки фланцев (1) и (2), обозначенные на схеме раскроя пунктирной линией, отрезать – они не влияют на крепеж фланцев.
3.   Вырезать заготовки деталей. Лучше сразу обработать кромки напильником.
4.   Распечатать файлы бумажных шаблонов .dwf в исходном масштабе (100%) и разрешении, для этого необходима утилита программы AutoCAD- DWF Viewer. С помощью вырезанных бумажных шаблонов (Рис.4 ,5) разметить центры отверстий и просверлить их. Как показала практика, лучше это сделать максимально точно и аккуратно, чтобы не было проблем с установкой и не пришлось бы рассверливать потом отверстия.


Рис.4 Формат А4 (210х297)


Рис.5 Формат А4 (210х297)
В результате получаем готовые фланцы (1) и (2).
5.   Установить фланцы (1) и (2) средней распорки днища на кузов. Для этого нужно открутить накидным ключом на 13 два болта, которыми крепится передний край алюминиевого теплозащитного щита кардана. Остальные четыре крепежные отверстия в кузове предусмотрены заводом изготовителем на всех типах кузовов Е30. Их лучше сразу очистить от грязи и проверить резьбу. Фланцы крепить только на эти четыре отверстия.
6.   Сделать по чертежу вырез на перемычке (3) и фаски по краям. На данном чертеже приведена конструкция средней распорки днища для автомобиля BMW в кузове Е30 с мотором М20В25 с катализатором. Для автомобилей с другим мотором и соответствующим ему, типом выпускной системы, форму и положение перемычки (поз.3) уточнить по месту. Размеры, обозначенные на чертеже перемычки «звездочкой» (*) лучше делать по месту после сварки.             
7.   Снять с аккумулятора клеммы! Прихватить сваркой перемычку (3) к фланцам (1) и (2). Открутить болты, снять перемычку с фланцами и обварить их с обеих сторон. Просверлить два отверстия в перемычке (3) через соответствующие отверстия в фланцах (1) и (2). По месту обрезать выступающую за фланец (2), часть перемычки (3).  Примерять распорку обратно на все шесть болтов – должна стать без проблем  ;) (Рис.6)


Рис.6
8.   В принципе распорка готова, но остались «отделочные» работы.
Снимаем распорку. Все сварочные швы тщательно зачищаем болгаркой и обрабатываем напильником, зачищаем наждачной бумагой (Рис.7)


Рис.7
9.   Обезжириваем уайт-спиритом и грунтуем (Рис.8)


Рис.8
10.   Красим в понравившийся цвет и получаем распорку, практически ничем не хуже заводской!  ^-^ (Рис.9)


Рис.9
11.   При установке, под фланец (1), соосно с внутренним отверстием, нужно поставить втулку (4) и более длинный болт М8х45 (6), так как, это крепежное отверстие находится не в одной плоскости с остальными пятью отверстиями. Устанавливаем распорку на машину и ездим «с удовольствием за рулем»  ^-^  (Рис.10, 11)


Рис.10


Рис.11


На фото есть небольшие несоответствия чертежам. Это объясняется следующим:
1.   Отверстия посредине перемычки (3) быть не должно и её кромки не очень ровные, их пришлось дополнительно обрезать – просто такой кусок железяки был под рукой.  :-[
2.   Некоторые отверстия пришлось рассверливать из-за не точной разметки. Так что настоятельно рекомендую использовать бумажные шаблоны.

P.S.
Какого-либо ощутимого эффекта от этой распорки при повседневной городской езде, конечно, нет. Она скорее, нужна для дрифта или слалома. Я ее делал себе просто из интереса, и для усиления кузова.

Сcылка на чертежи в формате .jpg с большим разрешением
http://theglory.io.ua/album372619_0


Для просмотра и печати файлов чертежей .dwf в исходном масштабе (100%) и разрешении, необходима утилита программы AutoCAD- DWF Viewer.
Сcылки на чертежи в формате .dwf

Так как на форум теперь файлы в формате .dwf выложить нельзя, то пришлось их переименовать в .jpg
После их скачивания для возврата в формат .dwf необходимо удалить расширение .jpg из имени файла.



Вот прямые ссылки на основные чертежи распорок в формате .jpg в большом разрешении:

Передняя:     http://io.ua/15296965u
Задняя:          http://io.ua/15296966u
Средняя:       http://io.ua/17424133u


Вот ссылка на весь альбом с остальными чертежами и фотками в формате .jpg:
http://theglory.io.ua/album372619

Открываете и сохраняете нужные Вам картинки .jpg себе на комп. Распечатываете на плоттере на указанном формате бумаги в исходном масштабе или на обычном принтере в уменьшенном масштабе или частями на листах А4.
Этого вполне достаточно для изготовления распорок, а .dwg никому не отправляю, сорри.



(с) The Glory



« Последнее редактирование: 15 Ноября 2011, 13:04:14 от The_Glory
»
  • BMW 316 M20B25 седан интересного цвета BBS bodystyle
The Glory, можно просто - Слава      www.theglory.io.ua/album
BMW 316 M20B25 седан интересного цвета BBS bodystyle      www.e30club.ru/forum/index.php?topic=17820.0
  • Оценка за сообщение
  • Счистить ржавчину1
  • Пильнуть ведро0

Рекомендуем почитать по теме Распорки BMW E30 Чертежи + средняя распорка днища 09.03.2011

  • Освоился
  • *
  • Сообщений: 347
  • Репутация +5/-3
« Ответ #1 : 07 Апреля 2010, 13:29:23 »
Глори, отличный материал. Спасибо.
Есть вопросы по изгибам распорок. На чертеже задней распорки в поз 2 написано на каком растоянии гнуть? А под каким еще углом?
Как я понял ты подгинал из-за саба, может есть чертеж распорки которую не нужно гнуть?

зы нижняя распорка ощутима добавит жесткости. Было бы здорово, если подготовишь чертеж этой каракатицы)
  • Оценка за сообщение
  • Счистить ржавчину0
  • Пильнуть ведро0
  • можно просто - Слава
  • Зверский Е30 Тюннер
  • *****
  • Сообщений: 9069
  • Репутация +402/-21
  • Пол: Мужской
  • Локация: Украина, Киев, Вишневое
  • Возраст:51
« Ответ #2 : 07 Апреля 2010, 13:36:30 »
Ну так если саба нет, то гнуть ничего не надо! На чертеже и есть прямая труба, без изгиба.
Нижняя будет скорее всего не "каракатица", что ты подумал, а гораздо проще - аналог стоковой для кабрио.
  • BMW 316 M20B25 седан интересного цвета BBS bodystyle
The Glory, можно просто - Слава      www.theglory.io.ua/album
BMW 316 M20B25 седан интересного цвета BBS bodystyle      www.e30club.ru/forum/index.php?topic=17820.0
  • Оценка за сообщение
  • Счистить ржавчину0
  • Пильнуть ведро0
  • Освоился
  • *
  • Сообщений: 347
  • Репутация +5/-3
« Ответ #3 : 07 Апреля 2010, 13:46:54 »
ясно. Длина задней по крепежным отверстиям 1038, как и кузова. Я решил, что изначальная длина трубы больше с учетом погрешности на изгиб.

можешь выложить фотку нижней распорки?
  • Оценка за сообщение
  • Счистить ржавчину0
  • Пильнуть ведро0
  • БМВод со стажем
  • **
  • Сообщений: 1239
  • Репутация +145/-60
  • Пол: Мужской
  • Локация: Воронеж
  • Возраст:46
« Ответ #4 : 07 Апреля 2010, 13:58:46 »
респект! +1
318i E30 M10-продал(///320i E30 M20-была///520  Е12 М20-владел///520  Е12 М20-владел///728i E23 M30-владел///518i E28 М10-продал///323i Е30 М20-продал  730i М60-продал///318i Е36-продал///328i Е46-есть
  • Оценка за сообщение
  • Счистить ржавчину0
  • Пильнуть ведро0
  • Ярый БМВод
  • ***
  • Сообщений: 1735
  • Репутация +133/-29
  • Пол: Мужской
  • Локация: ЗелАО
  • Возраст:41
« Ответ #5 : 07 Апреля 2010, 14:00:03 »
ясно. Длина задней по крепежным отверстиям 1038, как и кузова. Я решил, что изначальная длина трубы больше с учетом погрешности на изгиб.

можешь выложить фотку нижней распорки?

+1
азлк 2141-45F3R 99г.в.2.0i - продал (07.02.2010г.)
BMW 320i кузов 86г.в. двигатель с 525 е34 88г.в.
  • Оценка за сообщение
  • Счистить ржавчину0
  • Пильнуть ведро0
  • Освоился
  • *
  • Сообщений: 347
  • Репутация +5/-3
« Ответ #6 : 07 Апреля 2010, 14:22:11 »
опережу)
Глори собирается сделать поперечную распорку, как на рисунке /go.php?l=aHR0cDovL2Jtdy5hdXRvY2F0cy5ydS9wYXJ0cy9FMzAvNC1kb29ycy9VU0EvMzI1aS1NMjAvTEhEL0EvMTk4OC9qYW51YXJ5L2Jyb3dzZS9ib2R5d29yay9yZWFyX2Zsb29yX3BhcnRzLw==, деталь номер 8.
  • Оценка за сообщение
  • Счистить ржавчину0
  • Пильнуть ведро0
  • можно просто - Слава
  • Зверский Е30 Тюннер
  • *****
  • Сообщений: 9069
  • Репутация +402/-21
  • Пол: Мужской
  • Локация: Украина, Киев, Вишневое
  • Возраст:51
« Ответ #7 : 07 Апреля 2010, 15:38:23 »
mozy

Совершенно верно опередил ;)  Фотка будет тогда, когда распорка будет окончательно сделана и успешно установлена.

1038мм - это фиксированный размер из кузовного каталога для Е30, по нему и делалася чертеж с прямой трубой.
А для своего частного случая я трубу взял на пару сантиметров длиннее и гнул по месту, что бы обойти саб.
  • BMW 316 M20B25 седан интересного цвета BBS bodystyle
The Glory, можно просто - Слава      www.theglory.io.ua/album
BMW 316 M20B25 седан интересного цвета BBS bodystyle      www.e30club.ru/forum/index.php?topic=17820.0
  • Оценка за сообщение
  • Счистить ржавчину0
  • Пильнуть ведро0
  • Новенький
  • Сообщений: 36
  • Репутация +1/-0
« Ответ #8 : 08 Июня 2010, 20:59:42 »
Классный материал!))) А саб в салоне получается направлен в сиденье?
  • Оценка за сообщение
  • Счистить ржавчину0
  • Пильнуть ведро0
  • можно просто - Слава
  • Зверский Е30 Тюннер
  • *****
  • Сообщений: 9069
  • Репутация +402/-21
  • Пол: Мужской
  • Локация: Украина, Киев, Вишневое
  • Возраст:51
« Ответ #9 : 13 Июня 2010, 00:12:10 »
Классный материал!))) А саб в салоне получается направлен в сиденье?

Спасибо.
Да, саб прямо за спинкой... ищу спинку с подлокотником, но пока безуспешно...

P.S.
ёёёмаёёё!... чет я забыл (или забил :) ) на счет распорки днища...надо ж таки доделать...
  • BMW 316 M20B25 седан интересного цвета BBS bodystyle
The Glory, можно просто - Слава      www.theglory.io.ua/album
BMW 316 M20B25 седан интересного цвета BBS bodystyle      www.e30club.ru/forum/index.php?topic=17820.0
  • Оценка за сообщение
  • Счистить ржавчину0
  • Пильнуть ведро0
  • Гонсчик на М3
  • *
  • Сообщений: 6091
  • Репутация +255/-16
  • Пол: Мужской
  • Локация: Finland
  • Возраст:42
« Ответ #10 : 19 Июля 2010, 12:08:35 »
The_Glory
Спасибо большое за материал! ^-^
Делал на выхах себе распорки по твоим чертежам!

ЗЫ Распорку днища бы ещё.... ink
Yeah an S50 makes more power but the M20 is so damn raw.
  • Оценка за сообщение
  • Счистить ржавчину0
  • Пильнуть ведро0
  • Я здесь живу
  • *****
  • Сообщений: 10062
  • Репутация +20605/-1101
  • Локация: Worldwide
  • Возраст:35
« Ответ #11 : 20 Июля 2010, 11:40:58 »
такой вопрос:
на стаканах между шпильками опоры, имеются подштамповки, из-за которых кольца распорки не ложатся на стакан всей плоскостью. соответственно, гайки крутить как? или на шпильки ложить шайбы по высоте....?
  • Оценка за сообщение
  • Счистить ржавчину0
  • Пильнуть ведро0
x-500
  • Гость
« Ответ #12 : 20 Июля 2010, 13:23:26 »
такой вопрос:
на стаканах между шпильками опоры, имеются подштамповки, из-за которых кольца распорки не ложатся на стакан всей плоскостью. соответственно, гайки крутить как? или на шпильки ложить шайбы по высоте....?
тоже на уме имею эту тему... - давай вместе делать? :)
как мне кажется смысл тут не чтоб блины на чашки прилегли, а чтобы их зафиксировать-прижать гайками опоры! получается будут просветы между выштамповками... если металл толстый ложится, то его и так можно притянуть, ну будет просвет под шпилькой... хотя про шайбы тоже вариант, если хочется... может будут мнения от того, кто уже ставил распорку?
кста... спасибо за инструкцию по сальнику штока передач - протрахался полтора дня, но вроде все сделал ;)
  • Оценка за сообщение
  • Счистить ржавчину0
  • Пильнуть ведро0
  • Гонсчик на М3
  • *
  • Сообщений: 6091
  • Репутация +255/-16
  • Пол: Мужской
  • Локация: Finland
  • Возраст:42
« Ответ #13 : 20 Июля 2010, 15:45:18 »
такой вопрос:
на стаканах между шпильками опоры, имеются подштамповки, из-за которых кольца распорки не ложатся на стакан всей плоскостью. соответственно, гайки крутить как? или на шпильки ложить шайбы по высоте....?
Да недоход там есть!
Я пока не устанавливал переднюю распорку, но кольца прикрутил!
Они немного изменили форму после затяжки, думаю подложить пару шайб и будет вполне плотно!

ЗЫ 4я шпилька на правой чашке, это масса!(под неё вырез надо делать, отверситем не обойтись!)
Yeah an S50 makes more power but the M20 is so damn raw.
  • Оценка за сообщение
  • Счистить ржавчину0
  • Пильнуть ведро0
x-500
  • Гость
« Ответ #14 : 20 Июля 2010, 17:51:43 »
под неё вырез надо делать, отверситем не обойтись!
поделитесь опытом, как вы размечаете по месту и как делаете отверстия в блинах под шпильки

и как вообще можно саму распорку-трубу по месту гнуть, резать ? - не понимаю как ее прикладывать, на какой угол изогнуть чтобы стала как задумано а не как получится??
  • Оценка за сообщение
  • Счистить ржавчину0
  • Пильнуть ведро0
  • Гонсчик на М3
  • *
  • Сообщений: 6091
  • Репутация +255/-16
  • Пол: Мужской
  • Локация: Finland
  • Возраст:42
« Ответ #15 : 20 Июля 2010, 18:52:15 »
поделитесь опытом, как вы размечаете по месту и как делаете отверстия в блинах под шпильки

и как вообще можно саму распорку-трубу по месту гнуть, резать ? - не понимаю как ее прикладывать, на какой угол изогнуть чтобы стала как задумано а не как получится??

Дырки под шпильки делал по чертежам The_Glory.....
Трубу загнул трубогибом, ручным так же по чертежу на 132 градуса, осталось приварить треугольники к кольцам и прихватить трубу к втулкам.....ну и считай уже готово!

ЗЫ Долго парился с автокадом(некогда им не пользовался, только Компасом)так и не смог их открыть в нём! Но с помощью програмки Free DWG Viewer смог увидеть их, ну а дальше принт скрин - пейнт - принтер ;D
« Последнее редактирование: 20 Июля 2010, 18:55:16 от itet
»
Yeah an S50 makes more power but the M20 is so damn raw.
  • Оценка за сообщение
  • Счистить ржавчину0
  • Пильнуть ведро0
x-500
  • Гость
« Ответ #16 : 21 Июля 2010, 11:40:51 »
Трубу загнул трубогибом, ручным так же по чертежу на 132 градуса
насмотрелся разных исполнений распорок, появились такие вопросы:
наши передние чашки в каком направлении заваливаются - строго перпендикулярно движению в направлении двигателя или всетаки в направлении назад и внутрь?
это к тому, что при указанном угле 132 градуса, фактически основное сдерживающее усилие будет направлено не от падения строго перепендикулярно на двигатель, а наверное на угол до 42градусов от него (т.е. от завала чашек назад внутрь на угол 48 градусов от направления движения)
Есть варианты распорок, где межчашечная труба подходит к своим тарелкам строго перпендикулярно (от двигателя) и прикладывает основное усили на сдерживание перпендикулярного падения чашек в сторону двигателя.

Кто что знает про направление, в котором обычно заваливаются наши передние стаканы?
Может кто знает примеры известных производителей распорок под нашу модель е30 - там должно быть углы были расчитаны, а не получены экпериментальным путем по месту, как лучше-проще выгнуть трубу. Какие будут мнения?
  • Оценка за сообщение
  • Счистить ржавчину0
  • Пильнуть ведро0
  • можно просто - Слава
  • Зверский Е30 Тюннер
  • *****
  • Сообщений: 9069
  • Репутация +402/-21
  • Пол: Мужской
  • Локация: Украина, Киев, Вишневое
  • Возраст:51
« Ответ #17 : 21 Июля 2010, 12:39:55 »
The_Glory
Спасибо большое за материал! ^-^
Делал на выхах себе распорки по твоим чертежам!

ЗЫ Распорку днища бы ещё.... ink
пжлст
до распорки днища никак руки не доходят....уже есть в металле заготовки , но надо сварить и поставить, Как только сделаю - все выложу тут.

2 Holland.9
у меня при затяжке гаек чуть прогнулись кольца - можно либо взять металл потолще, либо шайбы, но эти прогибы на жесткость не влияют - так, чисто эстетически ;)

Цитировать
ЗЫ 4я шпилька на правой чашке, это масса!(под неё вырез надо делать, отверситем не обойтись!)
ну не знаю...у меня "масса" прикручена третьей гайкой - никаких вырезов не делал

Цитировать
ЗЫ Долго парился с автокадом
Извиняюсь, я немного не точно выразился - в Автокаде, обычно по умолчанию, идет утилита DWF Viewer - вот она и открывает эти файлы, а не сам Автокад.
Цитировать
принт скрин - пейнт - принтер
круто )) проще было взять готовые .jpeg со статьи

2 x-500 :
Ну во-первых внимательно прочитай мою статью - там все описано довольно подробно и про процесс изготовления и про углы и про вариант прямой распорки. А во-вторых, я никаких МЕГАрасчетов углов и усилий не делал, но если тебя так сильно волнует точность расчета углов и усилий - то купи фирмовую распорку и не парься. Они на Е30 бывают и прямые и такие, как мои - с 2 изгибами и даже с 4 изгибами.
  • BMW 316 M20B25 седан интересного цвета BBS bodystyle
The Glory, можно просто - Слава      www.theglory.io.ua/album
BMW 316 M20B25 седан интересного цвета BBS bodystyle      www.e30club.ru/forum/index.php?topic=17820.0
  • Оценка за сообщение
  • Счистить ржавчину0
  • Пильнуть ведро0
x-500
  • Гость
« Ответ #18 : 21 Июля 2010, 13:00:13 »
Ну во-первых внимательно прочитай мою статью - там все описано довольно подробно и про процесс изготовления и про углы и про вариант прямой распорки. А во-вторых, я никаких МЕГАрасчетов углов и усилий не делал, но если тебя так сильно волнует точность расчета углов и усилий - то купи фирмовую распорку и не парься. Они на Е30 бывают и прямые и такие, как мои - с 2 изгибами и даже с 4 изгибами.
не ругайся, я знаю что мы легких путей не ищем... ;)
но хотелось бы не просто вкорячить трубу между баншями, а и обосновать почему именно таким образом нужно ее применять.
потому твой вопрос правильный - ты сделал с двумя изгибами, можно делать с четырмя(конечно это сложнее еще два изгиба сделать) - этим можно подойти к чашкам под нужным углом, а именно под тем, в каком направлении башни падают, чтобы подпереть.... (ато получается будто мы башню за бок держим, будто человек падает а мы его за трусы схватили чтобы удержать ;) )
я не утверждаю, что ты сделал неправильно или правильно - я просто хочу понять аргументацию фактими, в под каким углом заваливаются чашки, чтобы принять свое решение более осмысленно пока это еще можно сделать.

также встречаю различные варианты крепления трубы к блинам, что на стаканы - ктото приваривает полоски дугой, ктото прямо, ктото прямо к центру трубу крепит, ктото к ближайшему краю блина ее приваривает. - тоже разные варианты, хотелось бы понять к какому месту блина и почему крепится труба (самому видится, что правильнее опираться на центра, может я не прав или чегото не знаю не понимаю пока) ???
------------ Сообщение склеено: 21 Июля 2010, 12:04:16 -------------

еще добавлю про углы - мне видится (собсно почему я засомневался) при неправильно выбранном углу будет неправильно распределена нагрузка, т.е. если труба держит в одном направлении. а башня падает в другом, то получается, что труба опирается только одним какимто углом втулки на ее конце на одну сторону крепежного болта, тот на одну сторону одного ребра на блине стакана - т.е. система упора у нас какбы перекошена, она конечно както отрабатывает, но перегрузки несет не обоснованно. имха
------------ Сообщение склеено: 21 Июля 2010, 13:09:33 -------------

и еще, я не хочу распорку от крутой фирмы, если ее можно сделать самому и осознанно, причем она будет отрабатывать не хуже фирменной
« Последнее редактирование: 21 Июля 2010, 13:09:34 от x-500
»
  • Оценка за сообщение
  • Счистить ржавчину0
  • Пильнуть ведро0
  • можно просто - Слава
  • Зверский Е30 Тюннер
  • *****
  • Сообщений: 9069
  • Репутация +402/-21
  • Пол: Мужской
  • Локация: Украина, Киев, Вишневое
  • Возраст:51
« Ответ #19 : 21 Июля 2010, 15:26:12 »
Дык никто и не ругается. Твое желание знать что, куда и зачем, конечно заслуживает похвал - для этого нужно хорошо покурить сопромат  ;) Но твои опасения на счет углов и усилий были бы оправданы, если бы это была не распорка стаканов Е30, а распорка, удерживающая стены котлована станции метро при ее строительсве.
Если с завода ее не ставят, то там нет каких-то диких усилий, от которых прям трубы гнутся! )) (если конечно не вфигачиться боком в столб). Распорка нужна для жесткости кузова, а не для его прочности. Если там все сгнило так, что чашки гуляют как хотят - то распорка не спасет.
Цитировать
можно делать с четырмя(конечно это сложнее еще два изгиба сделать) - этим можно подойти к чашкам под нужным углом, а именно под тем, в каком направлении башни падают

Чем больше изгибов - тем меньше жесткость распорки (при прочих равных условиях). В идеале по жесткости - приварить прямую трубу прямо к стаканам. :D Варианты крепления трубы, тоже большой рояли в данном случае не играют - главное что бы они исключали свободное перемещение трубы. А "башни" при живом кузове никуда не падают.

P.S.
А самая правильная распорка - это 3-угольник из труб, который крепится к стаканам и к моторному щиту посредине - так уж точно никакие башни никуда не упадут :)
  • BMW 316 M20B25 седан интересного цвета BBS bodystyle
The Glory, можно просто - Слава      www.theglory.io.ua/album
BMW 316 M20B25 седан интересного цвета BBS bodystyle      www.e30club.ru/forum/index.php?topic=17820.0
  • Оценка за сообщение
  • Счистить ржавчину0
  • Пильнуть ведро0
  • Гонсчик на М3
  • *
  • Сообщений: 6091
  • Репутация +255/-16
  • Пол: Мужской
  • Локация: Finland
  • Возраст:42
« Ответ #20 : 21 Июля 2010, 15:50:54 »
Извиняюсь, я немного не точно выразился - в Автокаде, обычно по умолчанию, идет утилита DWF Viewer - вот она и открывает эти файлы, а не сам Автокад.круто )) проще было взять готовые .jpeg со статьи

Жпеги со статьи брать не представляется возможным тк размеры не видно(даже примерно!)

ЗЫ Видел интересную распорку(щас фото той не могу найти) по типу такой, на 2 болта

только вместо карбоновой части плоская пластина и идёт прямо над впускным колектором!
Yeah an S50 makes more power but the M20 is so damn raw.
  • Оценка за сообщение
  • Счистить ржавчину0
  • Пильнуть ведро0
x-500
  • Гость
« Ответ #21 : 21 Июля 2010, 17:24:49 »
понятно.
А самая правильная распорка - это 3-угольник из труб, который крепится к стаканам и к моторному щиту посредине - так уж точно никакие башни никуда не упадут :)
это очередной вопрос - на сколько оправдано и возможно или нужно ли сделать дополнительные крепления трубы к кузову например при помощи какихто кронштейнов? какие будут мнения?
  • Оценка за сообщение
  • Счистить ржавчину0
  • Пильнуть ведро0
  • можно просто - Слава
  • Зверский Е30 Тюннер
  • *****
  • Сообщений: 9069
  • Репутация +402/-21
  • Пол: Мужской
  • Локация: Украина, Киев, Вишневое
  • Возраст:51
« Ответ #22 : 21 Июля 2010, 17:59:46 »
Добавил ссылку на альбом с .jpg в большем разрешении (два основных чертежа):
Сcылка на чертежи в формате .jpg с большим разрешением
/go.php?l=aHR0cDovL3RoZWdsb3J5LmlvLnVhL2FsYnVtMzcyNjE5

Ну и дописал на счет DWF Viewer 
  • BMW 316 M20B25 седан интересного цвета BBS bodystyle
The Glory, можно просто - Слава      www.theglory.io.ua/album
BMW 316 M20B25 седан интересного цвета BBS bodystyle      www.e30club.ru/forum/index.php?topic=17820.0
  • Оценка за сообщение
  • Счистить ржавчину0
  • Пильнуть ведро0
  • Гонсчик на М3
  • *
  • Сообщений: 6091
  • Репутация +255/-16
  • Пол: Мужской
  • Локация: Finland
  • Возраст:42
« Ответ #23 : 21 Июля 2010, 18:56:41 »
Добавил ссылку на альбом с .jpg в большем разрешении (два основных чертежа):
Сcылка на чертежи в формате .jpg с большим разрешением
/go.php?l=aHR0cDovL3RoZWdsb3J5LmlvLnVhL2FsYnVtMzcyNjE5

Ну и дописал на счет DWF Viewer 


 ^-^
Yeah an S50 makes more power but the M20 is so damn raw.
  • Оценка за сообщение
  • Счистить ржавчину0
  • Пильнуть ведро0
  • Я здесь живу
  • *****
  • Сообщений: 10062
  • Репутация +20605/-1101
  • Локация: Worldwide
  • Возраст:35
« Ответ #24 : 21 Июля 2010, 19:17:11 »
2 Holland.9
у меня при затяжке гаек чуть прогнулись кольца - можно либо взять металл потолще, либо шайбы, но эти прогибы на жесткость не влияют - так, чисто эстетически ;)
да я у шамана купил - там питёрка ))))

на жоскасть можт чевото и не влияют, а в шпильках момент возникает.
  • Оценка за сообщение
  • Счистить ржавчину0
  • Пильнуть ведро0
 

закрыть

Начни общаться с фанатами BMW E30 прямо сейчас!

Войти Новичкам